为了提升周边居民生活基础设施,县城发集团积极谋划并完成西门菜市场停车楼项目。现我公司遵循公开、公平、公正的原则,委托湖北恒晟工程咨询有限公司,采取公开招租方式面向社会公开招租,特将有关事项公告如下:
一、招租项目名称
城发菜市(西门店)铺面第二次公开招租项目
二、项目概况
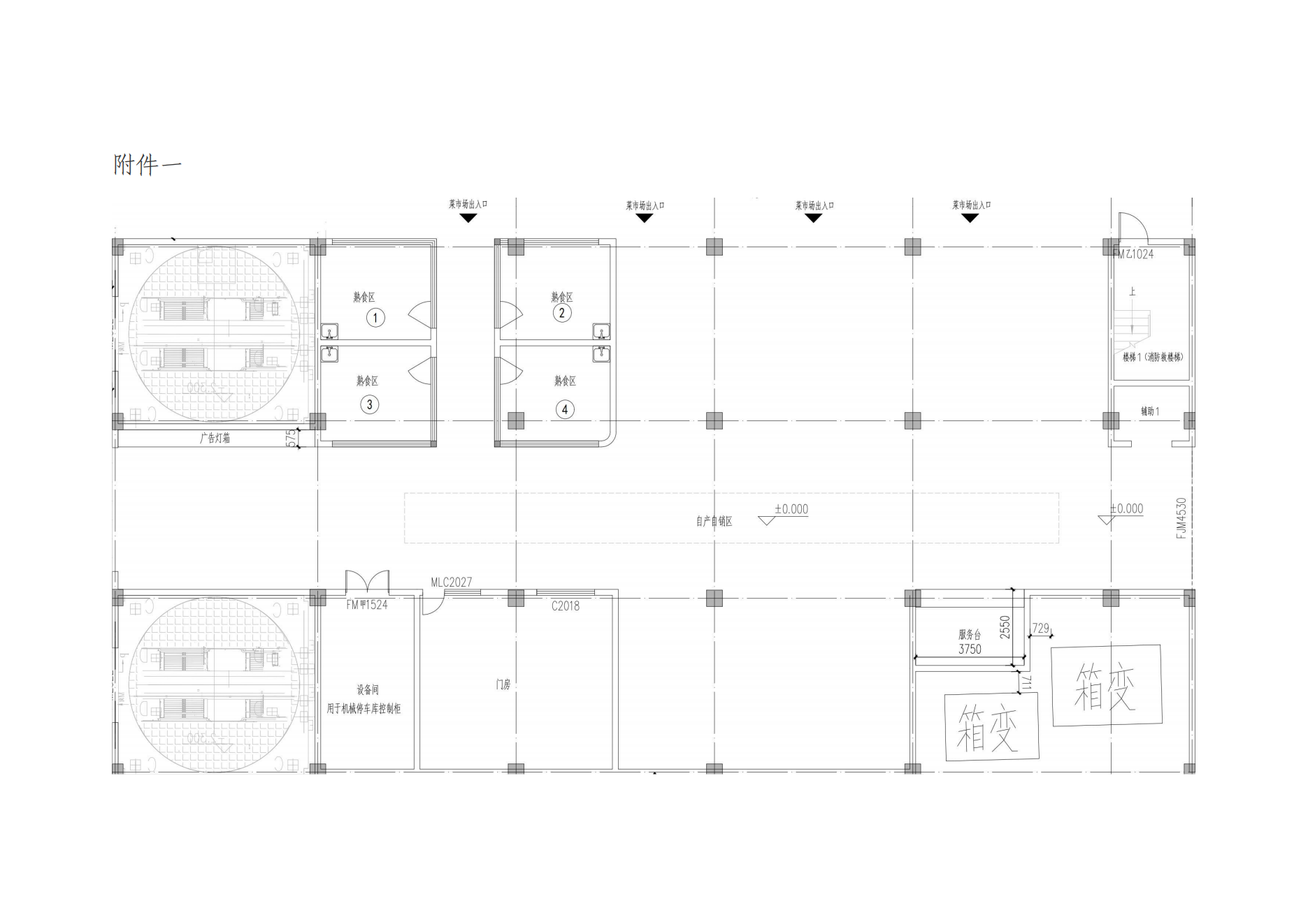
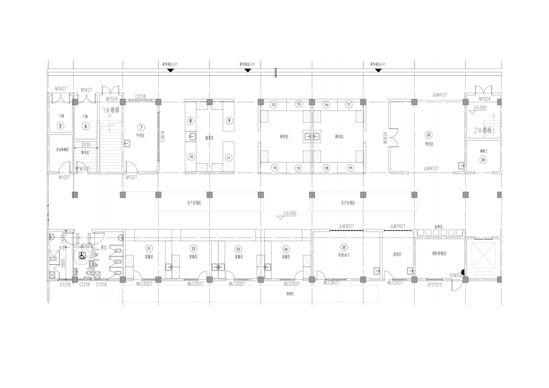
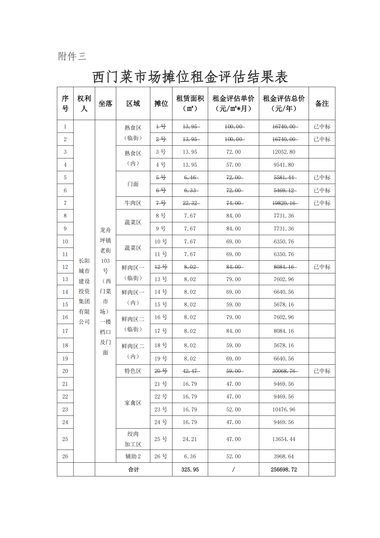
本次拟对西门菜市场一楼和西门菜市场停车楼一楼共计19个摊位(详见附件一、附件三)面向社会公开招租。
三、投标人条件
1、除特殊要求外,凡具有独立民事行为能力的自然人、法人、组织及其他机构(法律规定不能竞租者除外)均可报名参加竞租;
2、不接受联合体经营商竞租;
3、严格遵守国家有关法律法规及本市场规章制度,按时纳税和缴纳市场设施、管理等费用,服从市场管理;
4、恪守商业道德、文明经营、注重形象、着装规范。
四、租期
市场摊位、店铺租赁起始日以签订租赁合同为准,终止日为2026年12月31日,原则上合同到期后自动顺延一年。
五、资格审查
本次招租采用资格预审,即开标前对各投标人的投标资格进行审查。
经审查,有下列情形之一的,取消投标资格:
1、不具备招租公告规定的投标人条件的;
2、未按规定交纳投招租保证金的或招租保证金金额不足的;
3、招租公告要求提供的资料不齐全或不符合规定的;
4、租赁有长阳城发集团其他资产且欠缴租金、物业费、水电费等费用的情形;
5、法律法规规定的其他情形;
6、投标者不得串标、抬哄,否则取消其资格,且概不退还竞拍保证金。
六、中标人确定方式
1、各投标人以竞价的方式进行报价,每次报价最少上浮2元/㎡。仅有一人报名,则该摊位以底价中标。
2、当报价达到起始价的200%(即天花板价)时,停止竞价。若有2人或2人以上报价达天花板价,分以下三种情形决定摊位归属:
(1)仅有一人为原西门菜市场和西门饭店商户,则该人获得摊位租赁权。
(2)有2人或2人以上为原西门菜市场和西门饭店商户,则抽签决定中标人,非原西门菜市场和西门饭店商户无权参与抽签。
(3)均无人为原西门菜市场和西门饭店商户,则抽签决定中标人。
注:原西门菜市场和西门饭店商户清单见附件二。
七、投标保证金
投标保证金:店铺、摊位投标保证金均为5000元,投标多个店铺、摊位的需缴纳相应数量保证金(例:计划投标3个摊位需缴纳15000元保证金)。在竞拍保证金到账截止时间前,竞价人必须一次性足额将竞拍保证金转至指定账户,不接受非竞价人名义的银行账户代为缴交。保证金到账时间以竞价人选定的保证金账户所属银行开具的到账证明为准。
非竞得人保证金在竞价结果公布后10个工作日内一次性无息原路退回;竞得人的保证金于合同签订并缴纳租赁所需费用后,自动转为租赁保证金。
支付方式:现金缴款单、汇票、转账或电汇等方式
开户名称:湖北恒晟工程咨询有限公司长阳分公司
开户银行:中国农业银行长阳土家族自治县支行
账 号:17362101040008227
八、报名时间、地点
报名时间:2024年12月5日至2024年12月19日,每天8:30时至11:30时、14:00时至17:00时,逾期或申请资料不齐全不予受理。
报名地点:湖北恒晟工程咨询有限公司(长阳县龙舟坪镇清江瑞景1单元0503室)。
九、报名时需携带的申请资料如下:
1、有效身份证明原件及复印件。
2、委托他人代理的,需持授权委托书和委托代理人身份证及其复印件。
3、投标保证金交纳凭据。
十、投标时间、地点
时间:2024年12月20日上午9:00。
地点:湖北恒晟工程咨询有限公司(长阳县龙舟坪镇清江瑞景1单元0503室)。
十一、签订租赁合同、租金
1、确定中标人后,中标人持中标通知书与招租人签订租赁合同。委托他人代签的,应提交法定代表人或经营者(负责人)亲笔签名并盖章的授权委托书。
2、中标人在获取中标通知书后,三日内将租金缴至指定账户,缴纳租金后五日内与招租方签订租赁合同,中标人在收到招租方通知后,需在七日内进驻市场经营。中标人逾期支付租金、逾期未签订租赁合同、逾期未入场经营,均视为中标人放弃相应摊位租赁权,由此产生的一切损失由中标人承担,招租方概不退还参与竞标手续费,第二中标人自动获得该摊位租赁权。
十二、招标须知
1、摊位功能分区如附件图所示,中标人必须在功能区域内从事本区域经营(比如,肉区域只能售卖猪肉牛肉等,不能卖蔬菜水果),经营中不得变更既定的经营种类。
2、中标后,其承租的摊位或店面仅限于中标人使用,不得以任何形式转租或转让,自行转租或转让行为无效,招租人有权单方解除租赁合同并没收履约保证金,造成的一切后果由中标人承担。
3、中标后,其承租的摊位或店面必须接入智慧农贸系统,统一使用市场方配备的电子秤及指定银行收款二维码,如中标人不服从管理,则市场方有权单方面解除租赁合同,造成的一切后果由中标人承担。
4、合同期满后,原则上合同自动顺延一年,若市场方因改造需要收回出租摊位、店铺,经营户应自觉配合并不得以任何理由要求补偿。
5、招标服务费由中标人承担,标准按每个摊位200元收取。
十三、联系方式
产权单位:长阳城市建设投资控股集团有限公司西门菜市场
联系人:杨玮
联系电话:15171828555
招标单位:湖北恒晟工程咨询有限公司
联系人:王威
联系话:13135805666






当前位置: